cennik
galeria
wczasy nad morzem
oferta
dojazd
kontakt
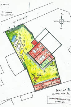
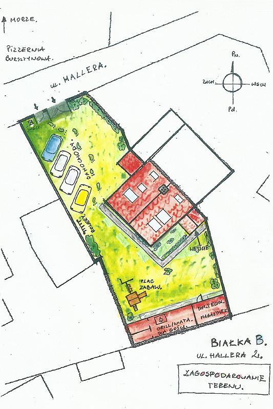
Białka B